VILLETTA UNIFAMILIARE DA ULTIMARE

In vendita
Lequile - Via Solano, 164
180.000 €
Villa
Categoria
303
m2
5
Locali
3
Camere
3
Bagni
1
Box
Descrizione
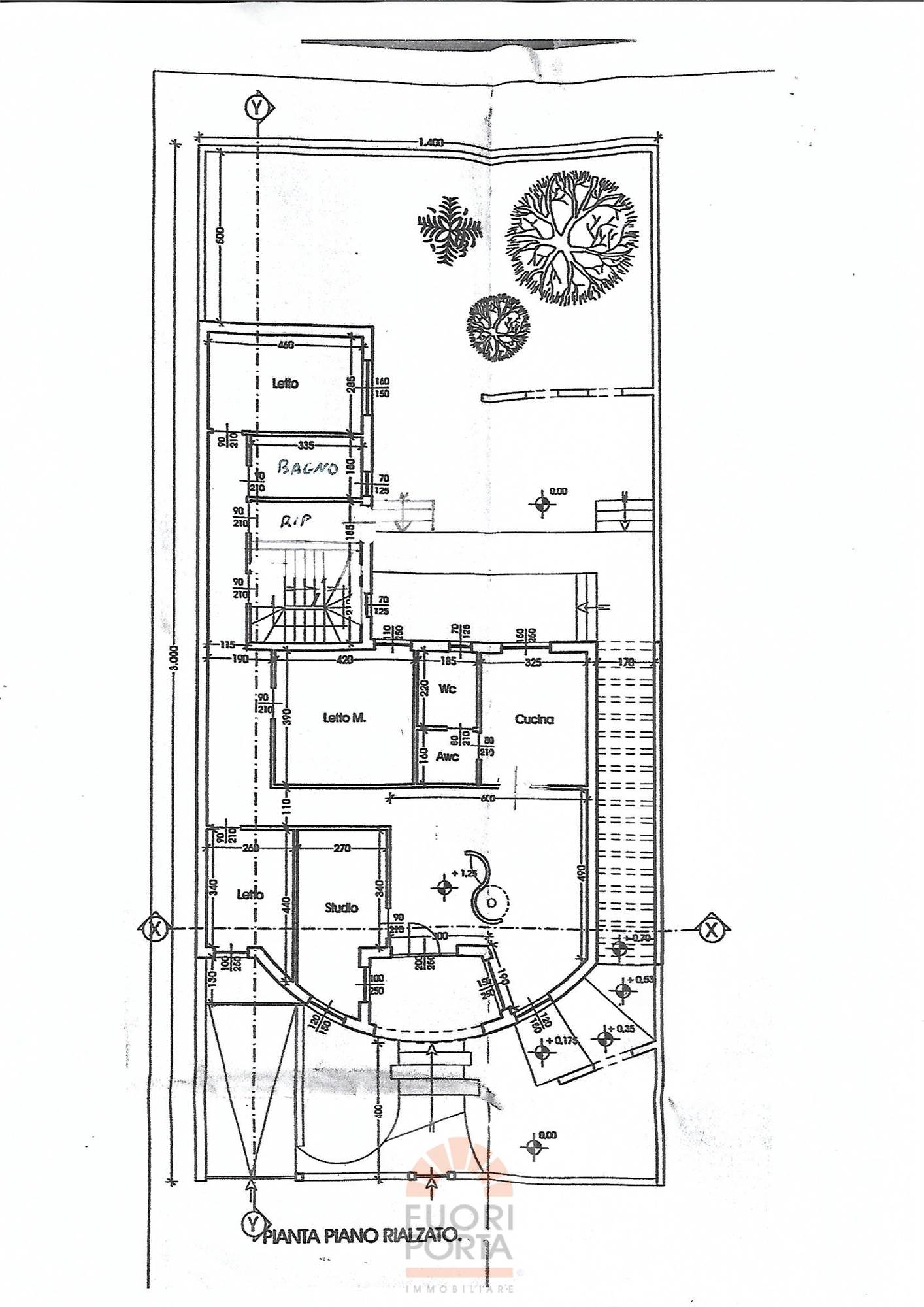
Salento. Hinterland di Lecce. Zona periferica e prettamente residenziale. Soluzione indipendente allo stato rustico avanzato. Piano rialzato. Già presenti: intonaci, pavimentazioni esterne, soglie, cornici, massetto interno, impianto idrico-fognante ed impianto elettrico (da revisionare o rivedere in toto). 5 vani oltre accessori. Scoperto antistante, giardino retrostante e corridoio esterno latistante che li congiunge. Ampio seminterrato adibito a garage con bagno e ripostiglio-lavanderia più un luminoso ambiente studiato e predisposto per essere una tavernetta. Area solare di proprietà. APE esente.
Prenota la tua visita!
Costruzione dotata di valida coibentazione. Predisposizione camino nell'ingresso-soggiorno e nella tavernetta. Inoltre, predisposizioni clima e allarme. In merito al riscaldamento, l'immobile è predisposto per l'installazione di una serpentina radiante da installarsi sotto la pavimentazione (anche nella tavernetta), nulla vieta però, considerato lo stato dei luoghi, di optare per l'installazione di un impianto a termosifoni.
Già predisposta per gli allacciamenti alle utenze.
Edificata tra il 2006 ed il 2007. Originale design architettonico.
Immobile progettato e costruito non certo per essere venduto. La proprietà se ne priva a malincuore causa intervenuti cambiamenti nell'orizzonte di vita familiare.
PREZZO TRATTABILE. Ti interessa? Non esitare a contattarci!
La vendita si intende sempre a corpo e non a misura. Le informazioni contenute nel presente annuncio sono puramente indicative e non costituiscono elemento contrattuale.
Per qualsiasi esigenza, chiamateci dal lunedì al venerdì h 9:00-13:00 e 15:30-20:30; sabato solo 9:00-13:00.
Caratteristiche principali
Codice:
01
Città:
Lequile
Categoria:
Villa
Locali:
5
Camere:
3
Bagni:
3
Mq:
303
Box:
1
Mq Box:
191
Mq Giardino:
160
Balconi:
1
Mq Balcone:
3
Terrazzi:
2
Piano:
Rialzato
Anno:
2006
Classe energetica:
Non applicabile
Stato Immobile:
Rustico
Grado:
Signorile
Posizione:
Periferia
Orientamento:
Ovest
Lati Liberi:
3
Giardino:
Privato
Tipo Soggiorno:
Salone
Tipo Cucina:
Abitabile
Riscaldamento:
Da Creare
Raffrescamento:
Predisposizione
Accessori
Camino
Ripostiglio
Mappa
Video
Cookie preference