STABILE RESIDENZIALE

In vendita
Cavallino - Via Diaz, 17-19
188.000 €
Stabile / Palazzo
Categoria
385
m2
9
Locali
4
Camere
4
Bagni
2
Posti auto
Descrizione
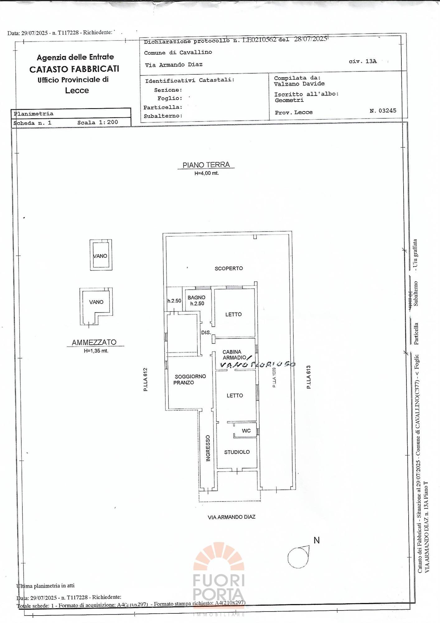
Salento. Immediato hinterland di Lecce. In zona centrale del paese, intero stabile ad uso residenziale composto da due abitazioni, una al piano terra ed una al piano primo. Le abitazioni hanno ciascuna accessi indipendenti.
Il piano terra è composto da cinque vani oltre accessori più scoperto retrostante e latistante. Quest'ultimo sfocia su strada e permette il posteggio di almeno un paio di autovetture.
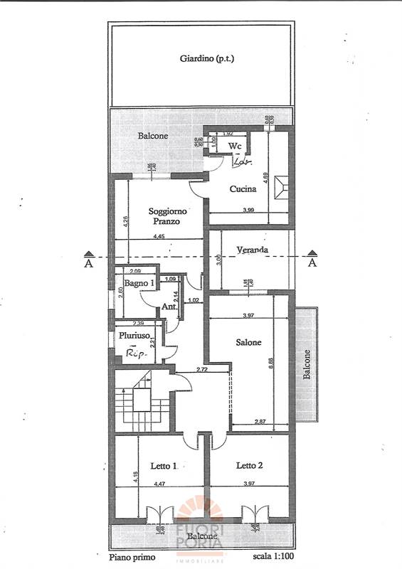
Il piano primo è composto da quattro vani oltre accessori più due verande (una allo stato interclusa) e due balconi (quello latistante da ultimare ed allo stato, intercluso).
Entrambe le abitazioni sono dotate di impianto di riscaldamento a metano, quella al piano primo però, ha una caldaia obsoleta da sostituire.
L'alloggio posto al piano terra è quasi interamente ristrutturato, quello al primo invece è da ristrutturare. APE n.d.
La soluzione potrebbe essere oggetto di acquisto congiunto genitori-figlio/a oppure fratelli/sorelle. Rappresenta anche valido affare per un eventuale investitore.
N.B.: Le abitazioni possono vendersi anche separatamente. Piano terra: € 118.000,00. Piano primo: € 70.000,00
Ti interessa? Non esitare a contattarci!
La vendita si intende sempre a corpo e non a misura. Le informazioni contenute nel presente annuncio sono puramente indicative e non costituiscono elemento contrattuale.
Per qualsiasi esigenza, chiamateci dal lunedì al venerdì h 9:00-13:00 e 15:30-20:30; sabato solo 9:00-13:00.
Caratteristiche principali
Codice:
1530
Città:
Cavallino
Categoria:
Stabile / Palazzo
Locali:
9
Camere:
4
Bagni:
4
Mq:
385
Posti auto:
2
Mq Giardino:
123
Balconi:
3
Mq Balcone:
17
Piano:
Terra
Classe energetica:
In fase di valutazione
Grado:
Signorile
Posizione:
Centro
Orientamento:
Sud Ovest
Lati Liberi:
2
Giardino:
Privato
Riscaldamento:
Autonomo
Tipo Riscaldam.:
Caldaia
Tipo Impianto:
Termosifoni
Fonte Energetica:
Metano
Acqua Calda:
Caldaia
Raffrescamento:
Split
Accessori
Aria Condizionata
Camino
Ripostiglio
Veranda
Mappa
Video
Cookie preference