CASA SEMINDIPENDENTE AL PIANO PRIMO

In vendita
Cavallino - Via Diaz, 17
70.000 €
Casa singola
Categoria
190
m2
4
Locali
2
Camere
1
Bagni
Descrizione
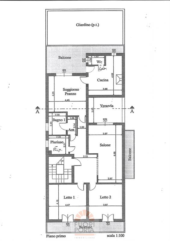
Salento. Immediato hinterland di Lecce. In zona centrale del paese, abitazione posta al piano primo e composta da: vano scala di accesso, ingresso, salone, vano pluriuso/ripostiglio, antibagno, bagno, sala da pranzo, cucina abitabile con camino, bagno-lavanderia, due camere da letto, veranda interclusa posta tra il salone e la cucina, balcone antistante, balcone latistante intercluso e veranda retrostante. Luminosissima.
Vano tecnico in cima al vano scala. Area solare di proprietà. Termautonoma a metano (la caldaia però è obsoleta e da sostituire). APE n.d.
Prenota la tua visita!
Trattasi di immobile da ristrutturare.
La veranda ora interclusa posta tra il salone e la cucina, può rendersi fruibile attraverso la semplice apertura di una porta-finestra da realizzarsi o nel salone oppure nella cucina o, in alternativa, nella sala da pranzo. Il balcone latistante, anch'esso ora intercluso e privo di parapetto/ringhiera (da realizzarsi), può rendersi fruibile attraverso l'apertura di una porta-finestra da realizzarsi nel salone.
Ti interessa? Non esitare a contattarci!
La vendita si intende sempre a corpo e non a misura. Le informazioni contenute nel presente annuncio sono puramente indicative e non costituiscono elemento contrattuale.
Per qualsiasi esigenza, chiamateci dal lunedì al venerdì h 9:00-13:00 e 15:30-20:30; sabato solo 9:00-13:00.
Caratteristiche principali
Codice:
1534
Città:
Cavallino
Categoria:
Casa singola
Locali:
4
Camere:
2
Bagni:
1
Mq:
190
Balconi:
2
Mq Balcone:
17
Piano:
1
Classe energetica:
In fase di valutazione
Stato Immobile:
Da Ristrutturare
Grado:
Signorile
Posizione:
Centro
Orientamento:
Sud Ovest
Lati Liberi:
2
Tipo Soggiorno:
Salone
Tipo Cucina:
Abitabile
Riscaldamento:
Autonomo
Tipo Riscaldam.:
Caldaia
Tipo Impianto:
Termosifoni
Fonte Energetica:
Metano
Acqua Calda:
Caldaia
Raffrescamento:
Split
Infissi:
Legno
Accessori
Aria Condizionata
Camino
Ripostiglio
Mappa
Video
Planimetrie
Cookie preference